ГлавнаяГотовый арендный бизнес — Карла Маркса проспект, 39, к Б

Карла Маркса проспект, 39, к Б,
1089.00 м2

63 000 000 руб.

57851 руб./м2

Следить за ценой


Площадь: 1089.00 м2

Окупаемость: по запросу


Компания "Регион Бизнес Недвижимость"

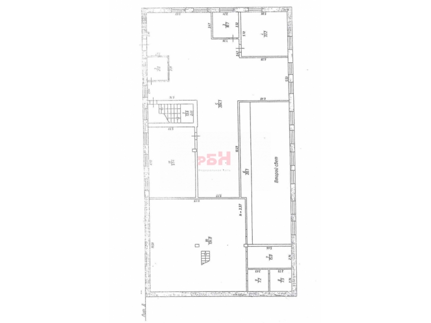
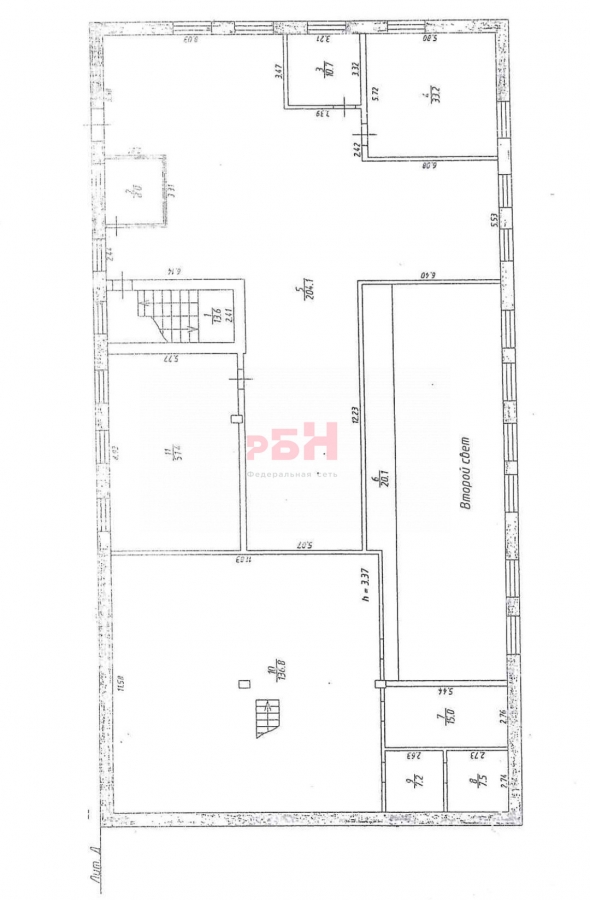
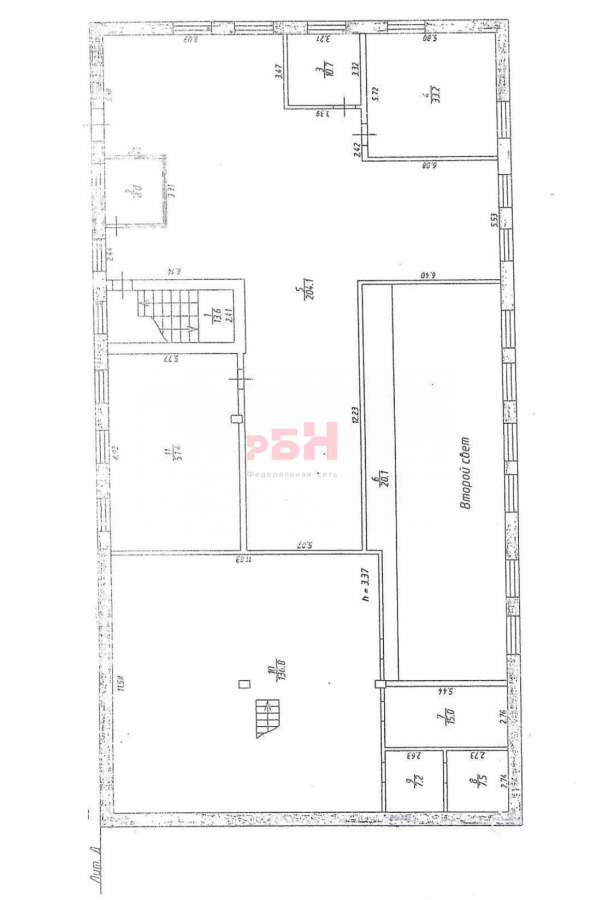
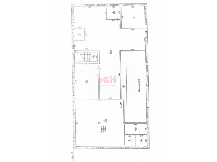
Предлагает приобрести,
отдельностоящее двухэтажное здание в центре города, удобные подъездные пути, земля в собственности 2500 тыс кв.метров,
парковка.
Здание полностью заполнено арендаторами. МАП по запросу.

Возможно использование под офисный центр, каршеринг,клинику, арендный бизнес и многое другое.

Звоните, покажем в удобное для вас время!
Арт. 132339184

Специалист

Парфенова Евгения

+7 (4852) 59-58-48

или оставьте ваш номер,
и я перезвоню в течение 5 минут

Согласен с Политикой конфинденциальности и с Политикой оператора в отношении обработки персональных данных

Отправляя заявку вы соглашаетесь на обработку персональных данных

Похожие объекты

Посмотреть другие объявления в этой категории