Дружная ул., 26, 165.30 м 2

6 500 000 ₽
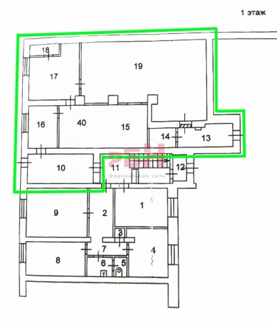
Площадь: 165.30м 2 Этаж 1 из 2
39 322 ₽/м 2
Налетова Елена
Специалист
или оставьте ваш номер,
и я перезвоню в течение 5 минут
Нажимая на кнопку, вы даете своё согласие на обработку персональных данных и соглашаетесь с политикой конфиденциальности
ОТ СОБСТВЕННИКА. БЕЗ КОМИССИИ ДЛЯ ПОКУПАТЕЛЯ.
* Работаем без выходных и праздников. Звоните с 10:00 до 20:00 *

Продам помещение с отдельным входом в 400 м от пр-та Фрунзе.
Адрес: ул. Дружная, 26 (первый этаж, три входа: основной с улицы, через подъезд, запасной во дворе).
Назначение: офис, сфера услуг или торговли.

Характеристики помещения:
  • Общая площадь: 165,3 кв. м.
  • Отопление, водоснабжение, канализация - центральные; санузел.
  • Электричество 14,5 кВт.
  • Высота потолков 3,5 м.
  • Интернет в здании.
  • Доступ 24/7.
  • Возможность установки вывески на фасаде у входа.


Продавец - ИП. Один собственник, без обременений.
В помещении сделан капитальный ремонт. На данный момент не эксплуатируется.
Коммунальные платежи: электричество и водоснабжение - по счетчикам; отопление ~8 тыс. руб. в месяц.

Преимущества:
  1. здание находится в 400 м от пр-та Фрунзе и в 150 м от ул. Корабельная;
  2. 15-20 минут до центра города;
  3. удобный подъезд с пр-та Фрунзе и ул. Корабельная через ул. Судостроителей;
  4. парковка прямо перед входом в помещение;
  5. до ближайших остановок общественного транспорта 300-550 м, 11 маршрутов;
  6. вокруг довольно большое количество жилых домов;
  7. в шаговой доступности несколько учебных заведений, включая детские сады, школы, колледж;
  8. три входа: основной с улицы + через подъезд + запасной во дворе;
  9. данное крыло здания полностью состоит из коммерческих помещений;
  10. сделан капитальный ремонт, очень хорошее состояние.


ЖДЕМ ВАШИХ ЗВОНКОВ!
Арт. 119155368
Расположение

Дружная ул., 26

Похожие объекты

Посмотреть другие объявления в этой категории